NEED HELP FAST? We have over 40 years' experience with Bulk Material Handling, Packaging, and Processing.   (979) 217-1480 GET A QUOTE

NEED HELP FAST?   (979) 217-1480   GET A QUOTE

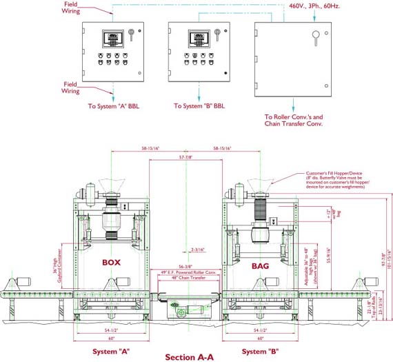
Filling Bulk Bags and Boxes with Polyester Pellets

Bulk Bag Filling with Vibrating Table and ScaleThis equipment fills bulk bags and boxes with polyester pellets.  All equipment contained in the system was dust tight with powered (CDLR) roller conveyors.

The entire system included 25 feet of incoming conveyor, a 90 degree (left or right) chain transfer, and two bulk bag filling machines with conversion kits to accommodate the filling of bulk boxes. Load cell scales, bag inflation, vibrating densification decks, inlet gates, and grid type vibrating tables for the roller conveyors were just a few of the added options.

Six to ten, 2,000 pound bulk bags or bulk boxes can be filled every hour, at each of the two bulk bag filling stations.

Ask a Question or Get a Price Quote

Get a Price Quote
Express Contact Form