
This 25 lb. open mouth bagging system is for sale. It has been lightly used and is in good working condition. It can be used to fill 25 lb. open mouth bags or smaller. Feed the system with material by discharging from an existing mixer, bulk bag unloader, or other types of conveying systems. The system includes a belt fed net weigh bagging scale which allows it to handle moderately flowing products like animal feed with molasses, crumbled feed, rice bran, rice hulls, crumb rubber, or specialty aggregates like aquarium or sands.
It can also be used to bag or repackage free-flowing materials like rice, seeds, grains, feed, and more.
If the system is still shown on this website, it is still for sale. Please click the button below to jump to the Express Contact Form located on this page to submit an inquiry.

Or Call / Text: (979) 217-1480
Features
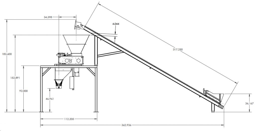
- 8 inch wide small inlet hopper to accept product discharge for transfer to incline belt conveyor
- 26.5 ft long incline belt conveyor, constant speed only, controlled by high/low level sensors to prevent over filling surge hopper. Low level sensor will start refilling surge hopper at minimum product level.
- 15 cubic foot (approximate) hopper located above the bagging scale with hopper level sensors
- Belt fed net weigh bagger with pneumatic bag clamp to accurately weigh out 25 lb. bags or less. Belt feeder is equipped with a VFD, allowing adjustment in discharge speed as needed.
- Once a bag reaches target weight, the incline belt will stop automatically, and the slide gate will close
- Electronic controls include digital read out of weights, direct interface with the load cells. Auto check weigh keeps the system running at target weight +/-.
- Oil tight / dust tight NEMA 12 specifications
- 230v single phase power
- All machinery is painted mild steel, powder coated where necessary
- Entire system is self-standing, and the highest point is approximately 16 feet tall.
Drawings
*measurements are in inches


Photos

Used 25 Lb. Bagging System Inquiry Form
A Tinsley Company sales representative will contact you as soon as possible with a price quote or request for more information such as material / product characteristics, pictures, bagging rates, flow rates, etc. * All fields are required.
